关于中石化南二环油氢电合建站规划平面的公示
扫描到手机,新闻随时看
扫一扫,用手机看文章
更加方便分享给朋友
新乡市自然资源和规划局
关于中石化南二环油氢电合建站规划平面的公示
项目简介
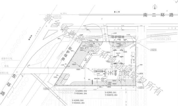
项目位于南二环107交叉口东南角,用地性质加油加气用地。规划用地面积10317.29平方米。该站加油部分油罐设计埋在置棚车道下,4座30立方油罐,加油加氯机罩棚为387.96平方来,氢压机罩棚为76.5平方米,充电部分总计6个充电位置、设加油机4台,加氢机2台,加氢压缩机1座。站房设计为2层框架结构,房屋面积为399.94平方米。安全距离符合《(汽车加油加气充电站设计与施工规范》相关的要求。整体外观为现代设计风格。

为增强我市规划透明度,维护公众的城市的规划知情权和对城市规划的监督权,提高城市规划管理水平,现将该项目进行公示。公示期7个工作日,相关权益人若有异议,请于公示期内向我局提出书面意见,逾期末提出,视为放弃权利。

工程名称:中石化南二环油氢电合建站
工程地点:南二环与107交叉口东南角
规划审核负责人:王嘉钺 电话:3833520
规划公示监督人:宋伟斌 电话:3833566
公示日期:2020年6月28日至2020年7月6日
公示网址:www.xxghj.gov.cn
公示牌安全维护责任单位:中石化新乡石油分公司
电话:0373-5060520
来源:新乡市自然资源喝规划局
声明:本文由入驻焦点开放平台的作者撰写,除焦点官方账号外,观点仅代表作者本人,不代表焦点立场。


